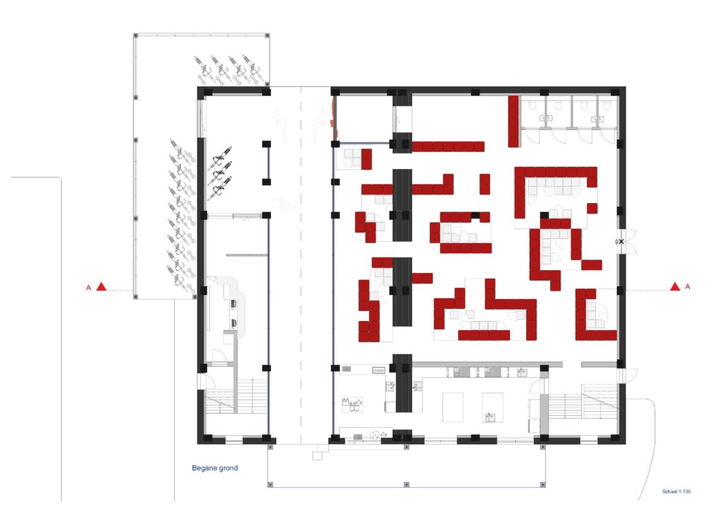
Shop & Café
I designed an art shop that shares a building with a coffee shop, where the display elements for the artworks also shape the layout and atmosphere of the café. In this way, the objects themselves not only showcase the art but also help define the spatial experience, creating a seamless connection between the shop and the café. The result is a dynamic environment where art and social interaction coexist, and where visitors can engage with the artworks while enjoying the café setting. Location; Former factory at the Spoorzone in Zwolle.
































